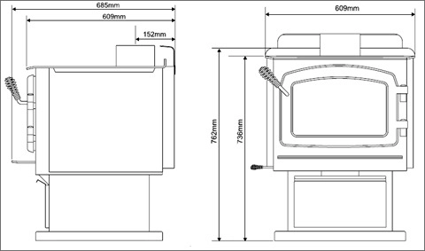
Kamna F2450 Medium o maximálním výkonu 16 kW patří do rodiny produktů kanadské značky Regency. Díky dvoustupňovému spalování a promyšlené dvouplášťové konstrukci jsou tato kamna schopna hořet až 9 hodin na jedno naložení s účinností 78%. Kamna jsou vhodná k vytápění prostor o rozloze 100 - 150 m². Díky účinnému oplachu skla předehřátým vzduchem se můžete těšit nerušeným pohledem do ohně. Ke kamnům doporučujeme dokoupit také ventilátor, který zajistí rovnoměrnou distribuci tepla v místnosti. Horní plochu kamen můžete též využít k vaření. V základní ceně kamen jsou vždy obsaženy:
Kamna je možné na přání různě modifikovat například pomocí moderních dvířek, nožiček na místo podstavce nebo ke kamnům dokoupit adaptér pro externí přívod vzduchu. Pro kompletní ceník nás prosím kontaktujte.
Chci poptat produktJsme tu pro vás - napište nám, nebo zavolejte...
